2024ǯ06·î02Æü
¢£Æá¿ÜÄ®¤Ø¡Ö¾®³Ø¹»À×ÃÏÍøÍѡסֵIJñÊó¤Å¤¯¤ê¡×¡¢²ñÇɤǻ뻡¤Ë»Ç¤¤¤Þ¤·¤¿¡£

µî¤ë5/22(¿å)¡Á23(ÌÚ)¤ÈÆÊÌÚ¸©Æá¿ÜÄ®¤Ø»ë»¡¤Ë»Ç¤¤¤Þ¤·¤¿¡£¤½¤â¤½¤â²áÆü¤¢¤ëÊý¤«¤é¡¢Æá¿Ü¤Î¹õ°ë±ØÁ°¤Ï¤È¤Æ¤â³¹¤Å¤¯¤ê·Ê´Ñ¤¬ÁÇÀ²¤é¤·¤¤¤È¶µ¤¨¤ÆÄº¤¤Þ¤·¤¿¡£ µ¡²ñ¤¬¤¢¤ì¤Ð¤È»×¤Ã¤Æ¤¤¤¿¤È¤³¤í¡¢ÅìÂçÏ»ԵIJñ¸øÌÀÅޤǤޤµ¤ËƱÃϰè¤Ë»ë»¡¤Ë¹Ô¤Ã¤¿µ»ö¤ò¸«¡¢Æ±»Ô¤ÎÅì¸ýµÄŤ«¤é¤â¾Ü¤·¤¯¤´¾Ò²ðĺ¤¡¢Æá¿ÜÄ®¤Î¡ÖÇѹ»¼Ë¤òÍøÍѤ·¤¿³¹¤Å¤¯¤ê¡×¡¢¤½¤·¤Æ¡ÖµÄ°÷¤Çºî¤ëµÄ²ñÊó¡×¤Î2ÅÀ¤Ç»ë»¡¤µ¤»¤ÆÄº¤¤Þ¤·¤¿¡£

»ë»¡½éÆü¤Ï¡ÖÇѹ»¼Ë¤òÍøÍѤ·¤¿³¹¤Å¤¯¤ê¡×¤È¤·¤Æ¡¢¡ÈÆá¿Ü¤Þ¤Á¤Å¤¯¤ê¹¾ì¡É¤Ë»Ç¤¤¤Þ¤·¤¿¡£¤³¤³¤Ï¤«¤Ä¤Æ¾®³Ø¹»¤À¤Ã¤¿¾ì½ê¤Ç¤¹¡£Æá¿ÜÄ®¤Ç¤ÏµìÄ«Æü¾®³Ø¹»¤ÎÇѹ»¤Ëȼ¤¤¡¢¤½¤ÎÀ×ÃÏÍøÍѤȤ·¤Æ°ìÈ̼ÒÃÄË¡¿Í¥³¥ß¥å¥Ë¥Æ¥£¥Í¥Ã¥È¥ï¡¼¥¯¶¨²ñ¤¬¾¯»Ò¹âÎð¼Ò²ñ¤Ë¤ª¤±¤ëÃÏ°èºÆ¶½µòÅÀ¤È¤·¤ÆÆá¿ÜÄ®¤«¤éͽþ¤Ë¤Æ¼Ú¤ê¼õ¤±¤ë¤³¤È¤Ë¤Ê¤ê¤Þ¤·¤¿¡£
¹»Äí´Þ¤à³Ø¹»ÉßÃÏÁ´ÂΤò¤Ò¤È¤Ä¤Î¥³¥ß¥å¥Ë¥Æ¥£¤È¤·¤Æºî¤êľ¤·¤¿¤½¤¦¤Ç¤¹¡£¹»¼Ë¤Î°ìÉô¡¢¹»Äí¡¢³Ø¹»Î¢¤Î¥×¡¼¥ëÉôʬ¤¬½»µï¥¹¥Ú¡¼¥¹¤Ë¤Ê¤Ã¤Æ¤¤¤Þ¤¹¡£¾å¿Þ¤Î°Ï¤ß¤Î¤¢¤ë¤È¤³¤í¤Ï¤¹¤Ú¤Æµï½»¥¹¥Ú¡¼¥¹¤Ç¤¹¡£¹»Äí¤Ç¤Ï¸½ºß¤â»ÜÀß(¥µ¹â½»¤Ç¤¹¤Í)¤ò·úÀßÃæ¤Ç¤·¤¿¡£

¼¡¤Ë¡¢¹»¼Ë¤À¤Ã¤¿»ÜÀߤγµÍפǤ¹¡£¤â¤È¤â¤È¤Î¹»¼Ë¤Ï2³¬·ú¤Æ¤Ç¡¢1³¬Éôʬ¤Ï¿©»ö¤äʪÈΤΥ¹¥Ú¡¼¥¹¡¢¤Þ¤¿Ê¡»ã¥¹¥Ú¡¼¥¹¡¢¤½¤Î¾ÍÍ¡¹¤ÊÍÑÅӤΤ¿¤á¤Î¥¹¥Ú¡¼¥¹¡£2³¬Éôʬ¤Ï¥Æ¥Ê¥ó¥È¤Èµï½»¥¹¥Ú¡¼¥¹¤Ç¤¹¡£


¤»¤Ã¤«¤¯¤Ê¤Î¤ÇÏä·¤ò¤ªÊ¹¤¤¹¤ëÁ°¤Ë¡¢»ÜÀ߯â¤ÇÃë¿©¤È¤·¤Þ¤·¤¿¡£¤³¤³¤ÏÀ¸³è¤Î¤¿¤á¤Î¤â¤Î¤ÏÁ´¤ÆÂ·¤Ã¤¿»ÜÀߤǤ¹¡£¿©»ö¤äµÊÃ㥳¡¼¥Ê¡¼¤Ï¡¢¡ÖÃϰè¤Î¿©Âî¤â¤ê¤â¤ê¡×(¢¨¾å¿Þ©)¤Ç¤¹¡£¤«¤Ä¤ÆÊÝ·ò¼¼¤Èϲ¼¤À¤Ã¤¿¤È¤³¤í¤Ç¤¹¡£Âç¹¥¤¤Ê¥«¥ì¡¼¤òĺ¤¤Þ¤·¤¿¡£

¤½¤ÎÎ٤ϡ¢¤ªÅÚ»º¤ä¿©ºà¤òÃæ¿´¤È¤·¤¿ÊªÈÎ¥³¡¼¥Ê¡¼¡Ö³Ú¹»DE¥Þ¥ë¥·¥§¡×(¢¨¾å¿Þª)¡£¤³¤³¤Ï¾º¹ß¸ý¤À¤Ã¤¿¤È¤³¤í¤Ç¤¹¡£¤«¤Ä¤Æ¤Î¾º¹ß¸ý¤Ï¿·¤·¤¤»ÜÀߤǤâ¥á¥¤¥ó¥¨¥ó¥È¥é¥ó¥¹¤Ë¤Ê¤ê¤½¤¦¤Ç¤¹¤¬¡¢¤³¤Î»ÜÀß¤Ç¤ÏºÇ¤âÆ»Ï©¤Ë¶á¤¤¡¢»ÜÀߤÎü¡¢¤ª¤½¤é¤¯¤«¤Ä¤Æ¤ÏÂΰé´Û¤È¤ÎÄÌÍѸý¤À¤Ã¤¿¤È¤³¤í¤¬¥á¥¤¥ó¤ÎÆþ¤ê¸ý¤Ë¤Ê¤Ã¤Æ¤¤¤Þ¤¹¡£ËÁƬ¤Î¼Ì¿¿¤¬¥á¥¤¥ó¤ÎÆþ¸ý¤Ç¤¹¡£


Ãë¿©¸å¡¢¤³¤³¤ò±¿±Ä¤¹¤ë¡ÈÆá¿Ü¤Þ¤Á¤Å¤¯¤ê³ô¼°²ñ¼Ò¡É¤ÎÅÌÚ¤µ¤ó¤«¤é¡¢¡Ö¸òή¥Û¡¼¥ë¡¦¤Ò¤í¤Ð¤Î¤Ò¤í¤Ð¡×(¢¨¾å¿Þ¡)¤Ç¤´ÀâÌÀĺ¤¤Þ¤·¤¿¡£¤³¤ÎÉô²°¤Ï¡Ö²»³Ú¹©LaLa¤é¤¦¤à¡×(¢¨¾å¿Þ²)¤È¥¬¥é¥¹Èâ¤Ç»ÅÀÚ¤é¤ì¤Æ¤¤¤ë¤À¤±¤Ê¤Î¤Ç¡¢³Ú´ï¤¬Å¸¼¨¤µ¤ì¤Æ¤¤¤ë¥·¥ç¡¼¥¦¥¤¥ó¥É¥¦¤Î¤è¤¦¤Ç¤¢¤ê¡¢¥¹¥Æ¡¼¥¸¤Ë¤â¤¢¤ê¤½¤¦¤Ç¤¹¡£¤³¤ÎÉô²°¤Ë¸þ¤«¤¦Ï²¼¤Ï¡¢¾å¤Î¼Ì¿¿¤Î¤è¤¦¤Ë¡Ö¥Ö¥Ã¥¯¥®¥ã¥é¥ê¡¼LaLa¤¤¤¯¤¿¡×(¢¨¾å¿Þ£)ϲ¼¿Þ½ñ¼¼¤Ë¤Ê¤Ã¤Æ¤¤¤Þ¤¹¡£

¤ªÏäò»Ç¤Ã¤¿¸å¡¢»ÜÀ߯â¤ò¸«³Ø¤µ¤»¤ÆÄº¤¤Þ¤·¤¿¡£¤ªÏäò»Ç¤Ã¤¿Éô²°¤Î¸þ¤«¤¤¤Ï¡¢¡Ö¥¢¡¼¥È¥®¥ã¥é¥ê¡¼LaLa¤¨¤¹¤Ñ¤¹¡×(¢¨¾å¿Þ¢)¤Ç¡¢ÍÍ¡¹¤ÊºîÉʤ¬¾þ¤é¤ì¤Æ¤¤¤Þ¤·¤¿¡£¤³¤³¤Ï¸µµë¿©¤ÎÇÛÁ·¼¼¤Ç¤¹¡£


³¤¤¤Æ¡¢2³¬Å즤ˤ¢¤ëµï½»¥¹¥Ú¡¼¥¹¡Ö¡×
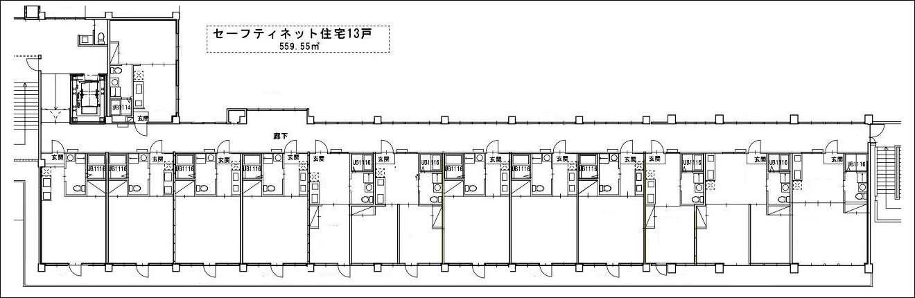
¡Ö¤Ò¤í¤Ð¤Î²È¡¦Æá¿Ü3¡×(¢¨¾å¿Þ¥)¤Ç¤¹¡£¤³¤³¤ÏÄ̾ï¤ÎÄÂÂß½»Âð¤Ç¡¢Ã±¿È¤«¤é¤´²È²¸þ¤±¤Þ¤Ç13¸Í¤¢¤ê¤Þ¤¹¡£¤â¤Á¤í¤ó¡¢°ÊÁ°¤Ï¶µ¼¼¤À¤Ã¤¿¤È¤³¤í¤Ç¤·¤ç¤¦¡£

¤³¤³¤Ï´Ê°×½ÉÇñ¥¹¥Ú¡¼¥¹¡Ö¥²¥¹¥È¥Ï¥¦¥¹¡¦¤¢¤µ¤Ò¤Î¤ª½É¡×(¢¨¾å¿Þ«)¤Ç¤¹¡£¤½¤ì¤¾¤ì¤ÎÉô²°¤ËÆóÃʥ٥åɤ¬2¥»¥Ã¥È¤¢¤ê¡¢Æþ¤ê¸ý¤ÈµÕ¦¤Ï·Ò¤¬¤Ã¤Æ¤¤¤Þ¤¹¡£1Çñ°ì¿Í3,500±ß¤À¤½¤¦¤Ç¤¹¡£

¤³¤³¤Ï»ÜÀߤγ°¡¢¤«¤Ä¤Æ¹»Äí¤À¤Ã¤¿¤È¤³¤í¤Ëºî¤é¤ì¤¿Â¿À¤Âå¸þ¤±°ìÈ̽»Âð¡Ö¤Ò¤í¤Ð¤Î²È¡¦Æá¿Ü1¡×(¢¨¾åÐíâ׿ޤ)¤Ç¤¹¡£Éô²°¤ÎÃæ¤Ï¥Ð¥ê¥¢¥Õ¥ê¡¼¤Ç¾²¤Ï´°Á´¤Ë¥Õ¥é¥Ã¥È¤Ç¤¹¡£Ê¬¾ù½¸¹ç½»Âð¤Ç¤¹¡£

¤³¤³¤â»ÜÀߤγ°¡¢¤«¤Ä¤Æ¹»¼Ë΢¤Ë¤¢¤Ã¤¿¼¼Æâ¥×¡¼¥ë¤À¤Ã¤¿¤È¤³¤í¤ò¥µ¹â½»¤Ë²þÃÛ¤·¤¿¡Ö¤Ò¤í¤Ð¤Î²È¡¦Æá¿Ü2¡×(¢¨¾åÐíâ׿ޮ)¤Ç¤¹¡£¼¼Æâ¥×¡¼¥ë¤À¤Ã¤¿¤À¤±¤¢¤Ã¤ÆÅ·°æ¤â¹â¤¯¡¢°µÇ÷´¶¤Î¤Ê¤¤»ÜÀߤǤ¹¡£60ºÐ¤«¤é¤Î²ð¸î¤ò½Å»ë¤·¤¿²È¤Ç¡¢´°Á´¸Ä¼¼¤ÎÁ´26¼¼¡¢24»þ´Ö¥¹¥¿¥Ã¥Õºß½»¡£¡ÖÀ¸³è¥ê¥Ï¥Ó¥ê¡×¤È¤¤¤¦¹Í¤¨Êý¤ò¼è¤êÆþ¤ì¤¿ÁÇÀ²¤é¤·¤¤»ÜÀߤǤ¹¡£

¤«¤Ä¤Æ¹»Äí¤À¤Ã¤¿¤È¤³¤í¤«¤é¤«¤Ä¤Æ¤Î¹»¼Ë¾º¹ß¸ý¤À¤Ã¤¿¤È¤³¤í¤ò¤½¤Î»ëÅÀ¤Ç»£±Æ¤·¤Þ¤·¤¿¡£¼Ì¿¿Ãæ±û¤ÏʪÈÎ¥³¡¼¥Ê¡¼¡Ö³Ú¹»DE¥Þ¥ë¥·¥§¡×(¢¨¾å¿Þª)¤ÎÆþ¸ý¤È¤Ê¤Ã¤Æ¤¤¤Þ¤¹¡£

¸½ºß¤â¡¢¡Ö¤Ò¤í¤Ð¤Î²È¡¦Æá¿Ü1¡×(¢¨¾åÐíâ׿ޤ)¤Î2´ü¹©»ö¤¬¹Ô¤ï¤ì¤Æ¤¤¤Þ¤¹¡£¤³¤³¤Ï¿À¤Âå¸þ¤±°ìÈ̽»Âð¤Ê¤Î¤Ç¡¢¤³¤Î»ÜÀßÁ´ÂΤˤȤäÆÊ¿¶ÑǯÎð¤ò²¼¤²¤ë»ÜÀߤˤʤê¤Þ¤¹¡£

½éÆü¤Î¡ÖÆá¿Ü¤Þ¤Á¤Å¤¯¤ê¹¾ì¡×¤âºÇ´ó¤ê¤Î±Ø¤Ï¡Ö¹õÅĸ¶±Ø¡×¤Ç¡¢ÍâÆü»Ç¤¦¡ÖÆá¿ÜÄ®Ìò¾ì¡×¤âºÇ´ó¤ê±Ø¤Ï¤³¤Î±Ø¤Ç¤¹¡£º£²ó¤Î»ë»¡¤Î¥¡¼¤È¤Ê¤ë±Ø¤Ç¤·¤¿¡£

ÆóÆüÌÜ¤ÏÆá¿ÜÄ®µÄ²ñ¤Î¡ÖµÄ²ñÊó¡×¤Ç¤¹¡£ÍâÆü¤â¹õÅĸ¶±Ø¤«¤éÊ⤤5ʬ¤ÎÌò¾ì¤Ë»Ç¤¤¤Þ¤·¤¿¡£Æá¿ÜÄ®µÄ²ñ¤ÎàµÄ²ñ¹ÊóÆÃḚ̂Ѱ÷²ñá¤Î´Ø°Ñ°÷Ĺ¾¤ß¤Ê¤µ¤óÁí½Ð¤Ç¤´Âбþĺ¤¤Þ¤·¤¿¡£¼Ì¿¿¤Ï¡¢ÁÇŨ¤ÊµÄ¾ì¤Ç¤ÎµÇ°»£±Æ¤Ç¤¹¡£

Æá¿ÜÄ®µÄ²ñ¤Ï¤½¤â¤½¤âµÄ²ñ²þ³×¤ØÇ®¿´¤Ç¤¹¡£¤³¤ÎµÄ²ñÊó¤â¤¤¤«¤Ë»Ô̱¤Î³§Íͤ˵IJñ¤Ë¤Ä¤¤¤Æ¤´Íý²òĺ¤¯¤«¤ÎÃæ¤«¤é½Ð¤Æ¤¤¿¥Æ¡¼¥Þ¤À¤½¤¦¤Ç¤¹¡£


»ïÌ̤½¤Î¤â¤Î¤â»ö̳¶É¤ä¶È¼ÔǤ¤»¤Ë¤»¤º¡¢¤«¤Ê¤êƧ¤ß¹þ¤ó¤ÀÉôʬ¤Þ¤ÇµÄ°÷¤Ç¤ä¤é¤ì¤Æ¤¤¤ë¤½¤¦¤Ç¤¹¡£
µÄ²ñÊ󤽤Τâ¤Î¤Îñ²Á¤È¤Ê¤ë°õºþÈñ¤Ê¤É¤Ï¡¢¤â¤Á¤í¤ó°õºþÉô¿ô¤Ë¤è¤Ã¤ÆÊѤï¤ë¤Î¤ÇľÀܤÎÈæ³Ó¤¹¤ë¤³¤È¤Ï¤Ç¤¤Þ¤»¤ó¤¬¡¢ÇÛÉÛ¤ÏÀ¶À¥»Ô¤Î¾ì¹ç¥·¥ë¥Ð¡¼¿Íºà¥»¥ó¥¿¡¼¤Ø°ÑÂ÷¤·¤Æ¤¤¤Þ¤¹¤¬¡¢Æá¿ÜÄ®¤Î¾ì¹ç¤Ï´ðËÜŪ¤Ë¤Ï¼«¼£²ñ¤Ë²ÃÆþ¼Ô¸þ¤±¤Ë̵½þ¤Ç¤ª´ê¤·¤Æ¤¤¤ë¤½¤¦¤Ç¤¹¡£¤ä¤Ï¤ê²ÃÆþΨ¤âÀ¶À¥»Ô¤ÈÈæ¤ÙÃÇÁ³¤Ë¹â¤¯¡¢¥³¥ß¥å¥Ë¥Æ¥£¤¬¤·¤Ã¤«¤ê¤µ¤ì¤Æ¤¤¤ë¤È¤¤¤¦¤³¤È¤Ç¤¹¤Í¡£
°ìÄ̤ê¤ÎÀâÌÀ¤ò夤¤¿¸å¤Î¼Áµ¿¤Ï¡¢µÄ²ñ²þ³×¡¢¤Þ¤¿µÄ²ñÁ´ÂΤˤޤǹ¤¬¤ê¡¢Í½Äꤵ¤ì¤Æ¤¤¤¿2»þ´Ö;¤â¥¢¥Ã¤È¤¤¤¦´Ö¤Ë·Ð¤Ã¤Æ¤·¤Þ¤¤¤Þ¤·¤¿¡£»ë»¡¤Ë»Ç¤Ã¤Æ¡¢¤³¤ì¤Û¤ÉÀ¹¤ê¾å¤¬¤ë¤È¤¤¤¦¤Î¤âÄÁ¤·¤¤¤Ç¤¹¤Í¡£Ä̾Ìò½ê¤Î¿¦°÷¤ÎÊý¤«¤é¤ªÏäò»Ç¤¦¤Î¤Ë¡¢º£²ó¤ÏµÄ°÷¤«¤é¤È¤¤¤¦¤È¤³¤í¤Ç´÷Øß¤Î¤Ê¤¤Ï䬤Ǥ¤Î¤«¤È»×¤¤¤Þ¤¹¡£¤â¤Á¤í¤ó¡¢¤´Âбþ夤¤¿µÄ°÷¤µ¤ó¤ß¤Ê¤µ¤ó¤¬Îɤ¤Êý¤À¤Ã¤¿¤È¤¤¤¦¤³¤È¤Ç¤¹¡£

ºÇ¸å¡¢Ìò½ê¤Î³°¤Þ¤Ç¤ª¸«Á÷¤êĺ¤¡¢¤Þ¤¿¼Ì¿¿¤â»£¤Ã¤ÆÄº¤¤Þ¤·¤¿¡£¤¢¤é¤¿¤á¤ÆÆá¿ÜÄ®µÄ²ñµÄ²ñ¹ÊóÆÃḚ̂Ѱ÷²ñ¤Î´Ø¹¬ÉװѰ÷Ĺ¡¢¾®»³ÅÄŵǷÉû°Ñ°÷Ĺ¡¢¼¼°æ¹âÃ˵ÄĹ¡¢ÌÚ¼½¨°ì°Ñ°÷¡¢»°±ºÍۻҰѰ÷¡¢Áý»³¤³¤Î¤ß°Ñ°÷¡¢¤Þ¤¿¤ËµÄ²ñ»ö̳¶É¤Î³§Íͤ˿´¤è¤ê¸æÎ鿽¤·¾å¤²¤Þ¤¹¡£

¸áÁ°¤Î»ë»¡¤ò½ª¤¨¡¢»ö̳¶É¤Î¤ª´«¤á¤ÇÌò¾ìÁ°¤Î¤ªÅ¹¤Ç¥é¥ó¥Á¤ò¤·¡¢¤½¤Î¸å¡¢¹õ°ë±Ø¤Ø¡£±ØÁ°¤Ë¤¢¤ëÆá¿Ü±ö¸¶»Ô¤Î¡Ö»Ô±Ä¿Þ½ñ´Û¡¦¤ß¤ë¤ë¡×¤ò¸«³Ø¤·¤Þ¤·¤¿¡£¸å¤í¤Ë¸«¤¨¤ë·úʪ¤¬¿Þ½ñ´Û¤Ç¤¹¡£



¤³¤³¤Ï»Ô¤Î¥¢¥Æ¥ó¥É¤Ê¤·¤Ë¤½¤Ã¤È¸«¤Æ²ó¤ê¤Þ¤·¤¿¡£¤â¤¦ÁÇŨ¤Ê¿Þ½ñ´Û¤È¤·¤«¸À¤¤¤è¤¦¤¬¤Ê¤¤¤Î¤Ç¤¹¤¬¡¢¤·¤Ã¤«¤êº£¤Î¿Þ½ñ´Û¤Ø¤Î¥Ë¡¼¥º¤Ë¤Ê¤Ã¤Æ¤¤¤ëàÆø¤ï¤¤¤Î¸òή¥¹¥Ú¡¼¥¹á¤È¤Ê¤Ã¤Æ¤¤¤Þ¤·¤¿¡£

¹ç¤ï¤»¤Æ¡¢¹õ°ë±ØÁ°¤Î¤Þ¤Á¤Å¤¯¤ê¤Ç¤¹¡£¹õ°ë±Ø¤Ï¤«¤Ä¤ÆÅ·¹Ä¤´°ì²È¤¬¸æÍÑÅ¡¤ËÍè¤é¤ì¤ëºÝ¡¢¤³¤Î±Ø¤ò¤´ÍøÍѤˤʤé¤ì¤Æ¤¤¤¿±Ø¤Ç¤¹¤·¡¢±ØÁ°À°È÷¤â¤½¤¦¤·¤¿Çطʤ⤢¤ë¤Î¤Ç¤·¤ç¤¦¤«¡£


ÂçÀµ¥í¥Þ¥ó¤È¤¤¤¦¤«¡¢¾¼ÏÂ¥ì¥È¥í¤È¤¤¤¦¤«¡¢¤È¤Æ¤âÁÇŨ¤Ê¤Þ¤Á¤Å¤¯¤ê¤Ç¤¹¡£Ï©ÃϤâÀоö¤Ë¤Ê¤Ã¤Æ¤¤¤ë¤·¡¢³°Åô¤â¤¤¤¤¤Ç¤¹¤Í¡£¤â¤¦¡¢Ê⤤¤Æ¤¤¤ë¤À¤±¤Ç¥¦¥¥¦¥¤¹¤ë¤è¤¦¤Ê·Ê´Ñ¤Ç¤¹¡£


º£²ó¤Î»ë»¡¤Î½ÉÇñ¤Ï¡¢¹õ°ë±Ø¤Î¥Ó¥¸¥Í¥¹¥Û¥Æ¥ë¤Ç¤·¤¿¤Î¤ÇÁ°ÆüÌ뤴ÈӤϡ¢¾å¤Î¼Ì¿¿¡ÖÀ¸¤½¤Ð ÉÚÍۡפµ¤ó¤òÍøÍѤ·¤Þ¤·¤¿¡£¤â¤Á¤í¤óÈþÌ£¤·¤«¤Ã¤¿¤Ç¤¹¡£¤Þ¤¿¡¢¤ªÅÚ»º¤Ï¤³¤ÎÃæ¤Î¡Ö²¹Àô¤Þ¤ó¤¸¤å¤¦¡¦¸æ²Û»Ò»Ê½èÌÀ¼£²°¡×¤òÍøÍѤ·¡¢¾ø¤·¤¿¤Æ¤Î¤ªñ½Æ¬¤âĺ¤¤Þ¤·¤¿¡£¤³¤³¤Ïι´Û¤À¤Ã¤¿·úʪ¤ò¾¼ÏÂ40ǯÂå¤Ë²þÁõ¤µ¤ì¤¿¤½¤¦¤Ç¤¹¡£



¤³¤Î·úʪ¡¢¤¤¤¤¤Ç¤¹¤Í!! ¡Ö¥«¥Õ¥§¡¦¥È゙¡¦¥¯゙¥é¥ó¥Û゙¥ï¡×¡¢¤³¤Î¥«¥Õ¥§¤Ï¤É¤¦¤·¤Æ¤âÆþ¤Ã¤Æ¤ß¤¿¤¯¤Æ¡¢10ʬ¤À¤±¤ª¼ÙË⤷¤Þ¤·¤¿¡£µì¹õ°ë¶ä¹Ô¤À¤Ã¤¿ÀФ¤ê¤Î·úʪ¤Ç¡¢Ãæ¤â¤Û¤ÜÀΤΤޤޤΤ褦¤Ç¤¹¡£


ºÇ¸å¤Ë¡¢¤ªÌó«¤Î¤´ÅöÃϥ顼¥á¥ó¤Ç¤¹¡£Æá¿ÜÄ®µÄ²ñ»ö̳¶É¤Ç¤´¾Ò²ð夤¤¿¡Ö¥ì¥¹¥È¥é¥óÂ縶¡×¤Î¥é¡¼¥á¥ó¤Ç¤¹¡£¤Ó¤Ã¤¯¤ê¤È¤¤¤¦¤«¡¢º£¤Ï¤Ê¤¤¤Î¤Ç¤¹¤¬À¶À¥»Ô¸µÄ®¤Ë¤¢¤Ã¤¿¡Ö°ì¸µ¡×¤µ¤ó¤Î¥é¡¼¥á¥ó¤ÈƱ¤¸Ì£¤Ê¤Î¤Ç¤¹¡£ÇöÌ£¤Î¾ßÌý¥é¡¼¥á¥ó¤Ç¡¢ÀΤʤ¬¤é¤ÎÃæ²Ú¤½¤Ð¡£¤Û¤¦¤ì¤óÁð¤â¸ú¤¤¤Æ¤Þ¤¹¤Í¡£°ì¸µ¤µ¤ó¤¬ÊĤޤäƤ³¤³¿ôǯ¡¢¤Ä¤¤¤¾Ì£¤ï¤¨¤Ê¤«¤Ã¤¿Ì£¤Ç¤¹¡£Ì£¤â¤µ¤ë¤³¤È¤Ê¤¬¤é¡¢ÆâÁõ³°´Ñ¤È¤â¤Ë¥«¥Õ¥§¥ì¥¹¥È¥é¥ó¤Î¤è¤¦¤Ê¤ªÅ¹¤Ç¤¹¡£
¥ì¥¹¥È¥é¥óÂ縶
½êºßÃÏ¡§ ¢©329-3222 ÆÊÌÚ¸©Æá¿Ü·´Æá¿ÜÄ®»û»Òʺ3-164
ÅÅÏÃÈֹ桧 0287-72-0269
Posted by takosuzuki
¨¢
¨¢¢£»ë»¡